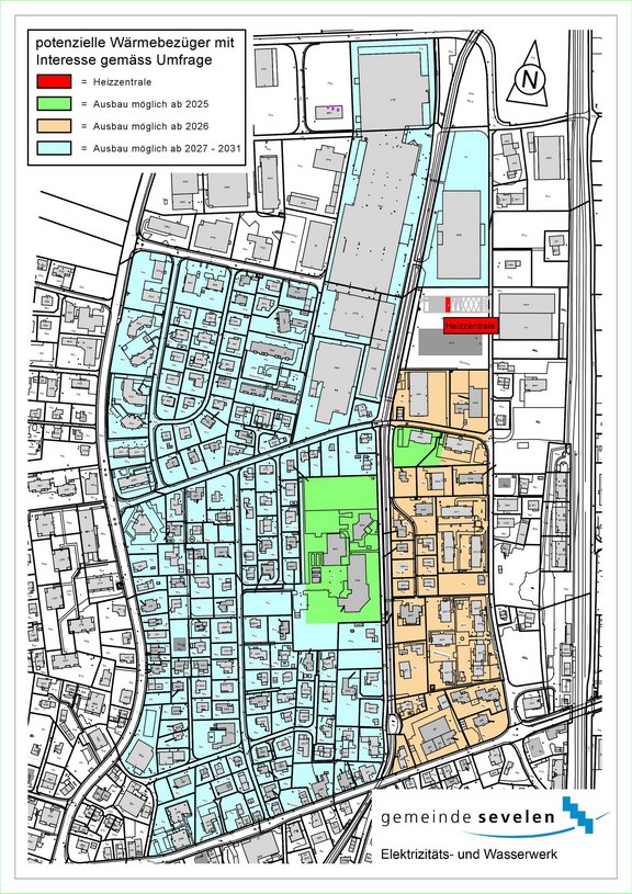
Fernwärme aus Sevelen Nord
Wo regionale Stärke auf nachhaltige Wärme trifft!Der Wärmeverbund Sevelen Nord versorgt Gebäude im nördlichen Teil von Sevelen zuverlässig mit nachhaltiger Wärme. Über ein modernes Fernwärmenetz wird lokal produzierte Energie effizient für Heizung und Warmwasser genutzt.
Durch die zentrale Wärmeerzeugung können fossile Energieträger reduziert und CO₂-Emissionen deutlich gesenkt werden. Gleichzeitig profitieren angeschlossene Liegenschaften von einer komfortablen, wartungsarmen und zukunftssicheren Wärmeversorgung.
So funktioniert der Wärmeverbund
In einer zentralen Energiezentrale wird Wärme erzeugt und über ein gut isoliertes Leitungsnetz zu den angeschlossenen Gebäuden transportiert.
Über eine Übergabestation gelangt die Wärme ins Gebäude und wird dort für Heizung und Warmwasser genutzt.
Vorteile eines Anschlusses
Ein Anschluss an den Wärmeverbund bietet zahlreiche Vorteile:
- Reduktion von CO₂-Emissionen durch den Einsatz erneuerbarer oder effizienter Energiequellen
- Hohe Versorgungssicherheit durch zentrale Energieerzeugung
- Kein eigener Heizkessel im Gebäude notwendig
- Wartungsarme Lösung für Eigentümer und Verwaltungen
- Platzsparende Installation mit kompakter Übergabestation
Anschluss an den Wärmeverbund
Gebäude im Versorgungsgebiet können an das Fernwärmenetz angeschlossen werden. Die Wärme gelangt über eine Hausanschlussleitung ins Gebäude und wird dort über eine Übergabestation in das bestehende Heizsystem eingebunden.
Interesse an einem Anschluss?
Möchten Sie mehr über den Wärmeverbund Sevelen Nord erfahren oder prüfen lassen, ob Ihre Liegenschaft angeschlossen werden kann?
Das Team berät Sie gerne persönlich und prüft die Anschlussmöglichkeiten für Ihre Liegenschaft.
